Nos hacen una nueva consulta. Un piso de superficie 47m² necesita una actualización. Por su distribución y conexión con las instalaciones de desagüe solo se puede jugar con la cocina y el baño.
A pesar de estos condicionantes encontramos 6 soluciones.
En todas ellas se reduce de dimensiones del dormitorio principal para ajustar el baño o la cocina, se cambia la ventana de la cocina actual para adaptarla a cada distribución, y aunque la ventana del baño actual podría mantenerse, mejor adaptarla y centrarla según el caso también.
En todas ellas se reduce de dimensiones del dormitorio principal para ajustar el baño o la cocina, se cambia la ventana de la cocina actual para adaptarla a cada distribución, y aunque la ventana del baño actual podría mantenerse, mejor adaptarla y centrarla según el caso también.
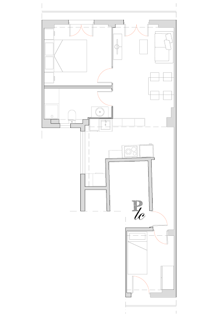
Opción 1:
En esta opción se han realizado los mínimos cambios posibles. La hemos preparado para que veáis como queda, pero no nos gusta ni cumple con la normativa que el acceso al baño sea directamente desde el comedor.
En el baño se puede colocar bañera o ducha.
La cocina se ha dejado abierta con dos bancadas en paralelo dejando la parte de uso de agua donde se encuentra ahora cerca de la bajante y enfrente se coloca la parte de cocción. Unos muebles bajos separan estéticamente la cocina del salón comedor. La zona de lavadero se deja donde se encuentra ahora. En este caso se podría mantener la ventana actual pero se podría colocar una puerta para independizar el lavadero de la cocina si se cambiara.
En esta opción ya se cambia cocina por el baño.
La cocina se coloca donde estaba el baño con una bancada en “L”. En este caso la lavadora se coloca en la cocina. También se podría colocar la “L” pegada a la pared de la ventana pero al estar ese entrante en la pared sería más incómodo el abrirla. El inconveniente de las cocinas en “L” es el espacio incómodo y desaprovechado de los muebles de esquina.
El baño se reduce de dimensiones con respecto a la cocina existente anterior para ganar amplitud en la zona de salón comedor. La ducha se coloca donde ahora se encuentra el lavadero.
Opción 3:
En esta opción se mantiene el baño con respecto la opción 2 y cambia la distribución de la cocina.
Se plantean dos bancadas independientes, zona de agua cerca de la bajante y zona de cocción con la campana frente al acceso, para mayor aprovechamiento del espacio y además, se coloca una bancadita bajo la ventana.
Opción 4:
En esta opción el baño se amplia para colocar una zona de lavadero a la entrada y las bancadas de la cocina se van adaptando a los tabiques de separación con el baño.
En este caso la cocina queda más independiente por la tabiquería de separación.
Opción 5:
Esta opción es muy similar a la anterior pero cambiando la zona de lavadero por la ducha teniendo que ser ésta última una ducha de esquina para poder abrir la puerta sin problemas y poder colocar el marco de la puerta sin que quede pegado a ésta y poder provocar problemas de humedades.
Opción 6:
Esta opción está basada en un “mix” de las anteriores, la cocina igual que la opción 3 y el baño muy similar a la opción 4 pero dejando la zona de lavadero fuera del baño oculta por unas puertas a modo de armario en un recibidor de acceso al baño.
Se plantean dos bancadas independientes, zona de agua cerca de la bajante y zona de cocción con la campana frente al acceso, para mayor aprovechamiento del espacio y además, se coloca una bancadita bajo la ventana.
En esta opción el baño se amplia para colocar una zona de lavadero a la entrada y las bancadas de la cocina se van adaptando a los tabiques de separación con el baño.
En este caso la cocina queda más independiente por la tabiquería de separación.
Esta opción es muy similar a la anterior pero cambiando la zona de lavadero por la ducha teniendo que ser ésta última una ducha de esquina para poder abrir la puerta sin problemas y poder colocar el marco de la puerta sin que quede pegado a ésta y poder provocar problemas de humedades.
Esta opción está basada en un “mix” de las anteriores, la cocina igual que la opción 3 y el baño muy similar a la opción 4 pero dejando la zona de lavadero fuera del baño oculta por unas puertas a modo de armario en un recibidor de acceso al baño.
¿Se os ocurre alguna más?
Si es así, dínoslo!
O si tienes alguna consulta que hacernos de tu caso concreto,
contacta con nosotras.
Esperamos tu mensaje!!
----------♣----------♣----------♣----------
Follow us in
bloglovin' + facebook + mail
Si has disfrutado con este contenido, dale difusión compartiéndolo con la etiqueta #PlanosLowCost.
If you have enjoyed this content, share it with the hashtag #PlanosLowCost.








No hay comentarios:
Publicar un comentario
Nos interesa tu opinión, cuéntanos...