Si tienes un terreno donde construir una vivienda adosada pero no te queda suficiente espacio para el jardín, tal vez esta casa te sirva de inspiración.
If you have a plot where to build an attached house but it hasn't enough space for the garden, maybe this house could be to inspire you.
Se trata de una vivienda unifamiliar de tres plantas situada en Singapur y diseñada por Formwerkz Architects.
Vista desde el exterior destaca la fachada por su jardín vertical.
La distribución del programa es la siguiente:
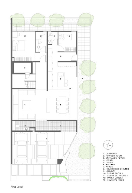
En planta baja se encuentra el aparcamiento para dos coches cuya cubierta se convierte en un jardín que se disfruta desde el dormitorio principal. Un amplio salón-comedor con cocina abierta, un dormitorio y aseo de servicio, y un dormitorio con baño para invitados.
This is a three-storey one-family housing placed in Singapore and designed by Formwerkz Architects.
Seen from outdoors, its façade catches the eye because of its vertical garden.
The distribution of the program is the following one: In ground floor we find the parking, for two cars, whose cover turns into a garden that is enjoyed from the main bedroom. A wide living&dining room with an opened kitchen, a bedroom and a toilet for domestic staff, and a guest-room with its bathroom.
En la primera planta se encuentran una zona de estar con vistas a la doble altura del salón, un estudio y dos habitaciones para los niños con baño compartido.
In the first floor we find a living area with sight to the double heighted lounge, a studio and two rooms for the children with shared bathroom.
En la segunda planta se encuentran el dormitorio principal con baño y una gran armariada, y un dormitorio doble con baño para los invitados. Desde éste se accede a la cubierta inclinada.
In the second floor we have the main suite with a long built-in-wardrobe, and a two-guests-bedroom with its bathroom. From this one, it is possible to acceed to the sloping cover.
Destaca también el aprovechamiento de todas las cubiertas de la vivienda incluyendo la cubierta inclinada de fuerte pendiente, para su uso y disfrute, dando más extensión ajardinada al aire libre y un lugar donde tumbarte y relajarte mirando al cielo.
It is very attractive also the utilization of all the roofs of the house, including the steep sloping cover, to be used and enjoyed, getting more gardened extension outdoors and a place where to lie down and relax looking at the sky.
Incluso se ha colocado en la cubierta una zona para la barbacoa.
Even there is an area in the roof for the barbecue.
La escalera interior es un elemento muy importante puesto que comunica las diferentes alturas de la casa dándoles continuidad visual.
The indoor stairs are a very important element because it communicates the different levels of the house giving them visual continuation.
El jardín vertical de la fachada, interiormente da privacidad al baño principal teniendo la posibilidad de abrir las puertas correderas dando la sensación de estar completamente en el exterior.
The vertical garden of the façade, gives privacy to the main bathroom, being possible to open the sliding doors, feeling as if you were outdoors.
Este es un claro ejemplo de como se puede integrar el jardín en una casa de forma natural y elegante.
¿Te ha servido de inspiración?
This one is a clear example of how the garden can fit into a house, in a natural and smart way.
Has it inspired you?
Follow us in bloglovin' + twitter + facebook
Si has disfrutado con este contenido, dale difusión compartiéndolo.
If you have enjoyed this content, share it.























Uauu, me ha encantado la distribución de espacios tanto en planta como en sección, y desde luego la resolución formal ELEGANTÍSIMA.
ResponderEliminarBSS
Tú lo has dicho, elegante, y yo añadiría, a tenor de las fotos, totalmente integrada en su entorno. Gracias por leernos.
EliminarDe acuerdo con María, la distribución es genial, consigue espacios amplios cómodos y un exterior original y bien integrado.
ResponderEliminarNos ha encantado
Pues nos alegra que todos opinemos igual, gracias Lara y Daniel por leernos. Saludos.
Eliminar